当社設計・当社施工作品の「古平町複合施設 かなえーる」が第66回 BCS賞(建築業協会賞)を受賞しました。
一般社団法人建築業協会が主催するBCS賞は、わが国の良好な建築資産の創出を図り、文化の進展と地球環境保全に寄与することを目的に、優秀な建築作品を創り上げた建築主・設計者・施工者の三者に与えられる権威ある賞であり、その時代を代表するわが国の優秀な建築作品として広く内外に紹介されています。
一般社団法人日本建設業連合会:http://www.nikkenren.com/
古平町複合施設 かなえーる
※クリックすると拡大します

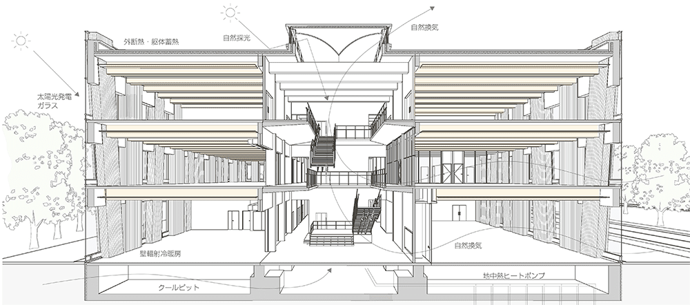
厳しい積雪寒冷地気候に属する北海道古平町において、既存庁舎と交流施設を集約化する町の中心施設の計画です。既存庁舎は95年間使われた建物であり、新庁舎も次の100年を担う災害に強い長寿命建築とすることが求められました。一方で、古平町は北海道で初めてゼロカーボンシティ宣言を行い、地球環境にやさしいまちづくりを進める意向でした。
そこで長寿命と寒冷地ZEBを両立するため、外断熱工法の鉄筋コンクリートの現しの建物としました。現しの躯体を蓄熱体とすることで安定した温熱環境をつくり、古平の風や光を季節に応じて取り込む計画としています。
木々に囲まれた立地環境であることから、木立のような斜め壁柱のファサードを構成し、そこに輻射冷暖房機能を組み込むことで、デザインは構造体、設備計画が一体となったスケルトン建築としています。梁には木と鉄筋コンクリートのハイブリッド梁を現しで設置しました。集成材が鉄筋コンクリートの型枠となり、構造体としての耐力を高めながら、ぬくもりある木質空間をつくっています。
厳しい気候の中においても、最低限のエネルギーで心地よい町民の居場所をつくることで、運用開始1年で79%の省エネを達成しました。
技術概要
- 建築主
- 古平町
- 所在地
- 北海道古平郡古平町大字浜町50番地
- 用途
- 庁舎、集会所、図書館
- 構造
- 鉄筋コンクリート造、鉄骨鉄筋コンクリート造
- 階数
- 地上3階
- 敷地面積
- 8,861.57m2
- 建築面積
- 1,323.59m2
- 延床面積
- 3,887.03m2
- 工期
- 2020年4月 ~ 2022年2月
- 設計
- 大成建設株式会社一級建築士事務所
- 施工
- 大成建設株式会社札幌支店
大成建設担当者
-
- 建築設計
- 高橋章夫
-
- 建築設計
- 杉野宏樹
-
- 構造設計
- 小山智子
-
- 設備設計
- 山本進
-
- 設備設計
- 藤間一憲